|
Notes: Brasted station, which was sited at the end of a 200yd approach road, was built during a time of financial restraint and the station building was of timber construction to keep costs to a minimum. Brasted was provided with a single platform without a passing loop on the down (south) side of the line. The single-storey building was 70ft in length and was of tongue-and-groove timber construction beneath a hipped slate roof with two brick chimneystacks. It stood on a low brick base. A flat canopy with a deeply fretted valance stretched the full width of the platform and the full length of the building; it was supported on seven timber columns with brackets. There was a small sloping canopy over the entrance to the booking office on the forecourt side of the building to provide some weather protection to passengers arriving by cab. The building included the booking office (which gave access to the ladies’ rooms), stationmaster's office, gents' toilet, lamp room and an ashes room. The building was very similar to that at Westerham but with a slightly reduced width and was typical of South Eastern Railway station buildings of the 1880s.
The platform was faced with brick and was lit by oil lamps mounted on columns behind the timber fencing at the back of the platform with another lamp suspended from the canopy. A separate lamp room was, at some time after 1909, sited 20yd east of the platform on the down side; it was a small timber building with a curved corrugated metal roof. Around the turn of the twentieth century the platform height was increased by adding further courses of bricks to the face. A station garden was established opposite the platform with the station name being laid out in painted stones. A two-storey house for the stationmaster was provided two years after the station opened. It overlooked the station forecourt 40yd to the south. In 1891 the station master was John Shoobridge. In 1901 it was William Taylor and in 1911 it was Ernest William Howard. Other station staff were a signalman, platelayer, porter and booking clerk.
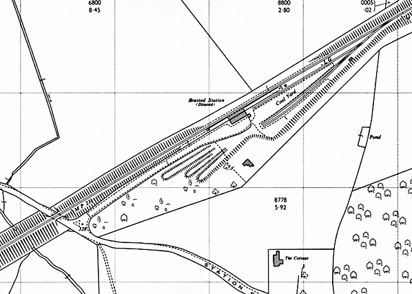
Considering the station possessed only limited goods facilities and handled no livestock, there was an unusually large goods yard which initially comprised two westward-facing sidings opposite the station building. One of the sidings ran behind the platform terminating just short of the station building, the second siding with a loop trailed off at about 25deg to the main line. Around the turn of the twentieth century, the points at the end of the loop were removed leaving two parallel sidings; why this was done is unclear. Removing the points would cause complications in shunting, as wagons could not be dropped off at Brasted en route to Westerham, as the loco would no longer be able to run around the wagons. Many sources state that Brasted never had a signal box but the maps reproduced below confirm that there was a box, built by Stevens & Sons. It was located on the up side of the line 100yd east of the station close to the entrance to the goods yard. In 1891 the signalman was Charles Cramp with Thomas Harvey as his apprentice. In 1911, 65 year old Charles Cramp was still the Brasted signalman. The box was abolished, probably in the early 1930s, and replaced with a ground frame on the down side, close to the entrance to the goods yard. Three fingers of land at the west end of the yard will be noted on the maps below. It is likely that these were spoil dumped during the construction of the line.
A number of local coal merchants leased whafage in the goods yard including AE Barton and SN Openshaw but the principal merchant was G Alderson who had wharfs at both Westerham and Brasted. George Alderson had a house opposite Brasted church and also ran a taxi service. The Alderson family stayed in the coal and coke business and were also haulage contractors and ran a coach hire company which lasted until the late 1960s.
The yard was not provided with a goods shed but from an early date there was a small corrugated metal store with twin double doors just inside the entrance to the yard. In the 1930s this was supplemented by an old SER van body left on its ‘W’ irons with some wooden steps leading up to the sliding door. Access to the goods yard was though metal gates at the east end of the station forecourt. The yard had no weighbridge. The 1939 OS map reproduced below shows coal bins and the end of the siding behind the platform and a short loading dock at the end of the back siding. These are not shown on earlier maps but this is not necessarily evidence that they were not there earlier. At some time the original oil lighting was replaced with gas lighting on new wrought iron standards in front of the fence at the back of the platform. The lamps were similar to the Sugg's Windsor style used at Westerham but with a crowned, as opposed to pointed, finial.
After the 1923 Grouping, the Southern was the most colourful of the 'Big Four' when it came to buildings, and it used the same colour scheme throughout the Grouping period from about 1926 when the standard colour scheme was introduced. The station building was repainted buff with green corner pillars, window frames and doors.
During the Southern Railway's electrification scheme in 1935 the gas lamps were replaced with the relatively little-known Suggs 'Littleton' type. Like the more familiar 'Rochester' lamp, the ‘Littleton’ was designed to cast shadowless light downwards. The new lamps were fitted with Southern Railway 'target' name signs. Perhaps of additional interest to collectors of railway memorabilia is the extreme rarity of the former Southern Railway target station sign for Brasted, which in 2008 held the record of £3250 for the highest price paid at auction for a target sign. New metal fencing along the back of the platform was also installed in the 1930s replacing the earlier timber fencing.
Nationalisation initially brought few changes at Brasted but by the mid 1950s passenger traffic on the branch had dropped drastically and staff were withdrawn from the station when it was downgraded to a halt from 19 September 1955. A new running in board, 'Brasted Halt', was provided. With the station building now locked a new entrance was created by utilising an existing gate in the fencing at the west end of the building. Without any staff, the station garden opposite the platform was no longer tended and quickly became overgrown.

After closure of the station both to passenger and goods traffic in 1961, a coal merchant remained in operation in the yard, with coal being brought in by road. Some of the photograpraphs reproduced here show coal lorries belonging to G Bowser Ltd. George and Margaret Bowser moved to Westerham in 1951, renting ‘Corner Cottage’ in Post Office Square. Bowser, born in 1921, had his roots in the Welsh coal mining industry, and his early days of trading in Westerham included a coal and coke merchant’s office in the High Street. By 1955 the Bowser’s had purchased ‘Homewood’ in London Road and this was adopted as the registered address for business as a sole trader. In 1964 the company G. Bowser Ltd was established, the business described as providing ‘passenger land transport’. What had started with coal cartage and sales had expanded to compete with Alderson of Brasted with the addition of coach-hire to the Bowser portfolio. The coal yard remained in use at least until construction of the M25 started in 1977 although the 1:2,500 Ordnance Survey map for 1985 still shows the coal yard with new bins having been provided at the east end of the yard.
The Westerham Valley Railway Association obtained a lease on the station building in 1963 and the Society installed a hand-painted sign on the fencing at the end of the approach road stating 'Brasted Station WVRA'. The station was used as a base for working parties being in a central position along the line. The station was used as the eastern terminus for the 'Railmotor' trials. Little work appears to have been done on the station building and within a couple of years it had been vacated by the WVRA and fell into disuse. The track was lifted in 1965.
By the mid 1970s the trackbed was very overgrown but the station building remained intact although by now somewhat shabby. The trackbed had been cleared by early 1976 prior to the construction of the M25. As work on the motorway progressed, the station building surprisingly remained standing in a very dilapidated condition until 1978 when construction of the motorway reached an advanced state. The Sundridge Road - Godstone (J5 - J6) of the M25 opened in November 1979.
Today on the approach to Brasted station, the course of the former branch comes in on the south side of the motorway. At the station site itself the east end of the platform is to the south of the hard shoulder, the platform building is just behind the hard shoulder but the west end of the platform is in the middle of the westbound carriageway and within 200yd the line has crossed over onto the eastbound carriageway. It then follows the northern hard shoulder for 400yd before crossing back over the motorway to the south side. The station approach road has been re-laid and now forms an emergency access route to the motorway and beyond the drive to the stationmaster's house is 'authorised vehicles only'. The goods yard is still fenced and gated although no longer secure. After the departure of the coal merchant the yard was used to store vintage vehicles for a while (hence the multiple padlocks on the gate) but is now derelict. The remains of the post-railway coal bins can be seen and a very dilapidated large wooden building stands just inside the gate. This may date from before closure of the line although it does not appear on any maps up to 1985 so it may have been acquired second hand and re-erected at the site.
BRIEF HISTORY OF THE WESTERHAM BRANCH
The South Eastern Railway first obtained powers to build a branch line to Westerham in 1864. These were renewed in 1867 and again in 1870 but, when no work was undertaken, a group of local businessmen and landowners took matters into their own hands in 1876 by promoting a parliamentary Bill for the construction of a branch line to their town. At that time, the closest railheads were at Edenbridge, four miles to the south, and Sevenoaks, five miles to the east. One of the prominent local promoters was wealthy landowner William Tipping who underwrote a substantial part of the £50,000 required to promote the Bill. Tipping was a director of the London & North Western Railway.
The route was similar to that first proposed by the South Eastern Railway in 1864 and would be built in two stages with the line running from a junction with the SER at Dunton Green (opened 1868) to Westerham via Brasted. The second stage of construction would see the line extended to a junction with the Croydon & Oxted Railway at Oxted. The C&OR was a joint venture between the LB&SCR and the SER and was, at this time, under construction using the partially constructed trackbed of the abandoned Surrey and Sussex Junction Railway.
The SER opposed the extension to Oxted and, if it was built, they refused to have anything to do with the line. To avoid antagonising them, the fledgling company withdrew the second stage of their scheme in return for an agreement with the SER to provide the rolling stock and work the line for 50% of gross receipts with a minimum of £2,500 per year being guaranteed by the Westerham Valley directors. With this agreement in place, the Westerham Valley Railway Bill was put before Parliament in the session beginning 22 March 1876.
The directors had appointed Westminster-based John William Grover as engineer. Grover was responsible for several notable buildings in London, and railway lines in England, Wales, Mexico and Venezuela. He reported to Parliament that the Westerham branch would be four miles forty-five chains in length (4¾ miles), with the steepest gradient of 1 in 70 and the most severe curve 18 chains in radius. He estimated the cost at £46,358. The Bill was passed with only one objection being received and the Westerham Valley Railway Company was incorporated by an Act of 24 July 1876.
Having received parliamentary consent for the construction of the branch nothing happened until 25 June 1879 when the SER agreed to take on the construction and maintenance of the line as well as the operation. Charles Chambers was appointed as contractor and construction was finally underway in October 1879.
Having left the SER's Sevenoaks line at Dunton Green, the single-track branch followed a fairly straight course to Westerham with one intermediate station at Brasted. The bridges carried over the line were constructed with an additional arch for a second track if required, but none of the earthworks or other bridges had this provision. Westerham station was typical of other SER stations built at this time of and was provided with wooden buildings to keep costs and construction time to a minimum.
Despite unusually bad weather slowing work in the autumn of 1880, by the following February construction was in an advanced state but was then hampered by heavy falls of snow. The bad weather and saturated soil inevitably increased construction costs and by the time the line was completed these had risen to £70,000. At that time, it was assumed that the line would eventually be extended to Oxted which was only four miles distant. An extension would, however, involve steep gradients and heavy engineering, and the it was never built.
There was a carnival atmosphere for the opening of the branch on 6 July 1881 with free travel over the branch throughout the day. The first train left Westerham at noon and was reserved for local school children and their teachers; later trains could be used by anyone. At 4.10pm a special train departed from Charing Cross carrying the VIP party which included SER Chairman Sir Edward Watkin and General Manager Myles Fenton. On arrival at Westerham, they were greeted by the Tunbridge Wells Parade Band and they proceeded to the town hall for the customary banquet and speeches.
Once the formalities and celebrations were over, the line settled down to a relatively eventless existence. An engine shed was provided at Westerham for the use of locomotives staying at the station overnight. Initially, the normal public service, which commenced the following day, ran only from Westerham to Dunton Green where passengers wishing to travel to Charing Cross (via Cannon Street) would have to change, although not all branch trains made a connection with a London service. Only stopping trains to London were available with an average journey time of 1½ hours to cover the 25¼ miles to Charing Cross. This was not breathtakingly fast but an improvement on the three hours previously taken by stagecoach. There were 11 trains in each direction on weekdays and eight on Sundays. By the end of the year, the weekday service had improved with the addition of an extra mid-evening down train and on Wednesdays a late evening train that arrived at Westerham at 12.46am. This allowed people to spend an evening out in London departing from Charing Cross at 11.40pm. At the same time, the Sunday service was reduced to only five trains: two of those trains taken out were connecting services with two non-connecting services being retained!
Under the South Eastern Railway Act of 11 August 1881, Westerham Valley Railway Company was amalgamated with South Eastern Railway Company and formal ownership of the line was
transferred to the South Eastern Railway in August 1881. At this time the Westerham Valley Railway Company was dissolved.
Motive power on the branch was generally provided by a Cudworth Class 118 2-4-0 dating from 1859. A number of these locos were allocated to Tonbridge shed during the period. The Cudworths were later replaced by James Stirling's Class Q 0-4-4Ts. At the turn of the twentieth century No.336 was allocated to Westerham sub-shed and generally provided the branch service.
By this time the line was well used and now had one through service to Cannon Street: the 8.40 a.m. from Westerham.
On 1 June 1882 the Westerham Herald tells of the addition of another station on the Westerham branch line at Sundridge: ‘the fortunate inhabitants of this lucky village will soon have a station on the Westerham Valley line. We hear the South Eastern authorities have chosen a site and there will soon be active commencement of the work. The new station will accommodate a large district both for passengers and goods traffic; the Westerham people, tho’ delayed a few minutes on their journeys, will always be pleased to meet their neighbours of Sundridge.’ This station, which was to be sited at Combe Bank, was never built.
By the end of the nineteenth century the SER and London Chatham & Dover Railway had fought over a small - and not particularly lucrative - territory for 40 years. Both were notorious for the poor quality of their services and decrepitude of their stock, and the struggles had driven both companies to the verge of bankruptcy. It became inevitable that they must combine or succumb. The South Eastern & Chatham Railway (SE&CR) was formed on 1 January 1899, when the SER and LC&DR formed a ‘management committee’ comprising the directors of both companies. This merged the two companies' operations, although they remained legally separate, with receipts split 59% to SER and 41% LC&DR until the Grouping, to avoid the costs and risks of a formal merger.
Apart from the regular passenger trains, there was one goods train leaving Westerham each day, and suddenly the potential for local nurserymen to sell their produce in London’s Covent Garden Market was a reality. Other goods conveyed included beer from Westerham’s two breweries, timber, livestock and locally-made agricultural implements. The incoming goods trains brought coal and building materials that were not locally available. Westerham had its own limeworks, producing mortar, also a brick-and-tile works and a timber and coal merchant - Hortons - conveniently sited alongside the railway with extensive yards and coal bins.
The railway also aided wider distribution of the postal service. For an additional fee of 2d a letter or parcel could be carried by any passenger train leaving Westerham. The coming of the railway also brought employment, and the census for 1901 records no fewer than 23 railway employees living in Westerham alone. Apart from the stationmaster, there were 2 signalmen, 3 engine drivers, 3 engine stokers, 3 railway guards, 4 booking clerks, 1 warehouseman, 3 platelayers and 3 porters.
During the early years of the twentieth century directors of the ‘management committee’ were concerned about a proposal to extend a tramway from London along the Dover road to Gravesend and Chatham competing with the existing branch line. In order to cut running costs the SE&CR developed the steam rail-motor with eight entering service in 1904/5. The rail-motors were of the articulated type and the fairly conventional detachable engine portions were built by Messrs Kitson of Leeds. They also represented the first use of Belpaire boilers, as evidenced by the flat-topped firebox, by the SE&CR.

From April 1906 all passenger services on the Westerham branch were operated by rail-motors Nos.3 and 7; this led to the closure of the engine shed at Westerham although the ash pit and coaling facilities were retained. To coincide with the introduction of the rail-motors a new halt was opened at Chevening on 16 April 1906. At this time, the timetable was improved and the 1910 timetable shows 18 down trains and 17 up trains on weekdays (plus the late night Wednesday working) with two through workings to Cannon Street in the morning, using ordinary carriage stock. There were eight trains in each direction on Sundays.
Despite making life easier by eliminating the need to 'run round' at termini, the rail-motors were disliked especially at busy times when a single coach was totally inadequate to cope with the volume of traffic on the branch. The rail-motors were slow, and rode with a sway and they had only third class accommodation with 56 hard wooden seats. This resulted in a torrent of letters of complaint from first class businessmen and the local Tradesmen’s Association, as the service had been slowed down, and as business commuters they had lost their quality seating.
The Westerham Herald for 5 January 1907 carried this report: ‘To compete with the S.E. Railway - Oxted Station in under 12 minutes! Utterly disgusted with the present inadequate railway service between Westerham and London, and more especially with the local steam railcar service, a petition has been drawn up and has been numerously signed by users of the line in this neighbourhood, praying the company to reinstate the ordinary train. Failing this last resource a practical solution of the difficulty is suggested, namely, a regular motor bus service between Westerham and Oxted, by which means London can be reached under an hour.’
The 'Westerham Flyer', as it was now called, had become the subject of derision: a topical verse was penned by Mr F A Williams and performed by him at the Brasted Village Concert the week previously. The short verse was entitled ‘Four Miles in Half-an-Hour’ ...
Now Brasted folk don’t mind a joke, I’m sure you’ll all agree, But a motor-train is a bit of a strain when you want to get home to tea. Tho’ Dunton Green is a lovely scene, especially in a showerit’s not your fault if at Chevening Halt your tempers getting sourchorus (twice) - Four Miles in Half-an-Hour!!Oh! that engine is a quaint old bird, the things it does are most absurd it’s impossible to love it, when you’re bundled out to shove it, it really is a quaint old bird!
The railmotors were short-lived and the branch reverted to Q class locomotives, with three-coach sets containing first, second and third class compartments.
In a further attempt to reduce running costs, the tiny P class 0-6-0T had been developed by 1909 for use on low-capacity branch lines. Although not very powerful, these locomotives were economical to run and they were able to cope adequately with short trains. No.753 was fitted for push-and-pull working when built in 1909, and it took over all the Westerham services with the locomotive marshalled between two bogie coaches. These auto-train workings lasted little longer than the rail-motors and the Westerham branch soon reverted to Q class operation again. From 1913, some of the P class returned to the branch having been fitted with a modified auto-train gear.
A significant decline in rail travel on the branch began in 1914 with the introduction of an omnibus route between Reigate, Oxted, Westerham, Brasted, Chipstead and Sevenoaks run by the East Surrey Traction Co. It is ironic to consider that the railway had killed-off the local stagecoach route from Westerham to Sevenoaks by 1882, but 50 years later, by the early 1930s motor buses from Dunton Green depot had taken almost all of the passenger travel from the railway.
In 1917, the practice of running Charing Cross trains via Cannon Street ceased but this did little to improve the general punctually of suburban services, which was, at this time appalling due to bottlenecks caused by too few tracks trying to accommodate too many trains. To try and alleviate this, a programme of electrification was proposed by the SE&CR. Stage 1 of the electrification included Charing Cross and Victoria to Orpington; and Stage 2 included Orpington to Tonbridge and the Westerham branch. This electrification by the SE&CR never came, and when electrification was eventually introduced by the Southern Railway it extended only as far south as Sevenoaks and Westerham never saw electric trains; this probably hastened the eventual demise of the line.
In 1923, the Westerham Valley Branch, together with its operators the SE&CR became part of the Southern Railway at the Grouping. Initially this made little difference to the branch.
After 1926 the Class P 0-6-0T was phased out as a passenger loco (the Q class was being scrapped too) and non-motor-fitted engines arrived to work the trains. Classes B and B1 4-4-0, and frequently the O1 0-6-0, were seen.
In September 1933, a new engine shed opened at Hither Green and it supplied all the locomotives for the branch for the next five years, with classes R and R1 locos operated in push-and-pull mode using two-coach sets that had been converted from the former SE&CR rail-motor sets.
The early years of the ‘Depression’ initially brought a cut in services in an attempt to save money. A number of trains during the middle of the day were cut out, as were the late evening trains, There were no losses to the Sunday timetable and the service was, in fact, improved somewhat with five trains running through to Orpington. The reduction of weekday trains was, however, short-lived. The electrification of the line between Orpington and Sevenoaks came in 1934 and a new timetable came in to operation with a half-hourly service to London. The off peak trains on the Westerham branch were reinstated with an hourly off peak service connecting with alternate electric trains at Sevenoaks.
In early 1936, a Sentinel railcar was trialled on the branch. Authorised by Richard Maunsell of the Southern Railway, the railcar was new in 1933 and appears to have been yet another attempt to provide economies of operation in that its design went further than the more familiar LNER and LMS Sentinel railcars. Construction was ultra-lightweight and tare weight is thought to have been in the region of a mere 11 tons – much the same as a modern double-decker bus. Obviously lightweight construction went hand-in-hand with structural strength. As was usual with Sentinel railcars, construction was by Metropolitan Cammell with Sentinel supplying the running gear, boiler etc. As a one-off, it must have been an expensive project for Metropolitan Cammell and indeed the Southern Railway. Further orders, which must have been hoped for, did not materialise. Drawings of the railcar have survived and the interior layout suggests it was designed for one man operation. A driver's seat was provided at both ends and the boiler was fitted with an automatic stoker and crusher. At the trailing end, the driver sat in what could be described as a combined cab and luggage compartment. Seating was provided for 44 passengers, access being by single-leaf sliding doors, presumably hand operated, located centrally on each side of the body and leading into a small vestibule. The boiler was the standard Sentinel vertical type, automatic stoker excepted, and the engine was Sentinel's familiar 2-cylinder type.
The railcar was designed for use on the Devils Dyke branch near Brighton, but it could not cope with the steep gradients and the brakes were inadequate for the return journey. On 2 March 1936 it was transferred to the London East Davison where it was given a second opportunity to prove itself on the relatively flat Westerham branch. To work the branch, the Sentinel would come up on the 7.23 am Tonbridge to Dunton Green and take over from the push-and-pull then, at 2.12 pm it would run back in traffic to Tonbridge for servicing. Branch trains in the afternoon would once again be in the hands of an R1, then at 5.00 pm the Sentinel would work 'passenger' back from Tonbridge to Dunton Green to work Westerham services for the rest of the evening, helped out by an R1 during the tea-time rush when two trains were required on the branch. The Sentinel was unreliable and it was even less popular than the rail-motors, and its stay on the Westerham branch was short with the line reverting to the trusted R1s within a few months.
In June 1938 Tonbridge shed once again took over the workings on the branch. These continued to be Class R1 which in 1939 were supplemented by class R locomotives. The 1938 timetable had 21 trains in each direction on Monday to Friday with 21 on Saturday and an additional late down service on Wednesday. On Sundays there were 18 down and 17 up trains.
During WW2, all railways were put under government control from 1 September 1939, and the mass evacuation of London's children was put into practice. Although 7,000 evacuees arrived at Sevenoaks the branch had no part to play as they were taken on to their final destinations by bus. In fact the war had little effect on the branch. From 11 September a new timetable came into operation which saw the branch service drastically reduced but a week later, on 18 September, the pre-war service was reinstated on Monday to Friday. Apart from the withdrawal of some cheap fares and the conversion of first class compartments to third, little else changed.
The Southern Railway was nationalised on 1 January 1948 and became the Southern Region of British Railways. The 1950 branch timetable had 22 down trains on Monday to Friday with 20 on Saturday. There were also 22 up trains but only 21 on Saturday, which was much the same as the pre-war service but without the additional late night service on Wednesday. The Sunday service was somewhat reduced with 15 down and 14 up trains.
In around 1952 Class H 0-4-4T locomotives began operating the branch service and would continue to do so until its closure, together with the R and R1s until the last of these was withdrawn in 1956.
During the 1950s, the line began to suffer competition with buses, notably the 403 route which ran from Croydon via Sanderstead, Chelsham and Westerham to Sevenoaks, and as train fares rose dramatically from 1938, passenger numbers fell. In order to save running costs BR decided to work the line on the ‘one-engine-in-steam’ principle, using a miniature train staff under the control of the Dunton Green signalman. Brasted joined Chevening in becoming an unstaffed halt, and from 13 June 1955, there would no longer by any trains in the slack periods, although a Sunday service was retained during the summer months only. The branch thus became a ‘commuter line’ with Sunday being the only day of the week with a service throughout the day.
Unusually, the Westerham branch was not a regular destination for railtours in the 1950s but there was one, organised by the Inter-regional Ramblers' on 10 November 1957. The ‘Kentish Heights Special' ran from Greenford calling at all stations on the branch. It was scheduled to be hauled by the revived GWR 4-4-0, 'City of Truro' but on the day, it was hauled by Wainwright Class 0-1 No.31064. There was also a BR excursion from Kensington Olympia on 15 January 1957 but passengers for Westerham had to use the normal branch service from Dunton Green.
In February 1956 the Kent Coast Electrification scheme was approved. Once completed, this would leave the branch as an isolated steam-operated adjunct of a modernised main line. Despite the operating economies that had been instigated in 1955 the line was reported to be losing £11, 600 per annum. BR made no attempt to investigate further ways of cutting costs and closure was announced in April 1960. On 12 June 1961, scheduled electric services commenced via the ex-SER route to Dover (although the full electric timetable did not commence until 18 June 1962). Despite this, the Westerham line continued to operate, but the end was inevitable.
The Central Transport Users' Consultative Committee argued against this move, claiming that 200 passengers per day used the line. They recommended that it should remain open to avoid the hardship closure would cause to commuters. This advice was rejected by the Minister of Transport, Ernest Marples, and it was announced that the last day of operation of the line would be Saturday 28 October 1961. He later also rejected a petition against closure signed by almost 2,500 local inhabitants and presented by the MP for Sevenoaks, John Rodgers. The Minister claimed that service was losing £26,000 per year which was equivalent to £150 per passenger.
Mr Rogers later suggested that the real reason for allowing the closure was to facilitate the construction of a South Orbital road (M25) running along its course. The Parliamentary Secretary was quick to refute this suggestion stating: ‘When we had our talk on 13 September about the closure of the Westerham - Dunton Green line you mentioned to me a current rumour that the Minister might have been influenced in reaching his decision by the possibility that certain proposed road improvements could be more economically carried out if the line were closed. I have made careful enquiries and I can assure you that any such suggestion is unfounded. The line of the road has not yet been fixed, and the Minister has not authorised any detailed survey.’
The final day dawned bright and sunny with large numbers of enthusiasts and photographers arriving at Dunton Green for a last opportunity to travel on the branch. Morning trains were worked by Class H 0-4-4T No.31518 with the usual two-coach push-and-pull set. The locomotive was adorned with a Union Jack, and the inscription ‘Flyer 1881-1961’ was chalked on the smokebox. To cope with the high demand, BR put on a 6-coach corridor train from early afternoon worked by Class D1 4-4-0 No.31739. The last trains of all were the 7.23 pm Westerham to Dunton Green and the 7.50 pm Dunton Green to Westerham. At Westerham, squibs and bangers were ignited, the signal cabin was swamped with visitors, and passengers for the 7.23 pm were wandering along the track to reach the coaches, the platform being too short for the 6-coach train, which was being worked by Class Q1 0-6-0 No.33029.
To compensate for the closure of the line, London Transport was to run additional buses on route 403. There were five extra journeys from Westerham to Sevenoaks between 6.0 am and 9.0 am; and six extra buses between 5.0 pm and 8.0 pm from Sevenoaks to Westerham.
In 1962, the Westerham Valley Railway Association, born of a merger between two local interest groups, the Westerham Branch Railway Passengers' Association and the Westerham Valley Railway Society, began to investigate the possibility of reopening the line, staffed by volunteers, for commuters on weekdays with diesel railcar service and as a heritage railway at weekends between April and October using steam haulage. British Railways offered the ownership of the line for £30,000 on the basis that a commuter service would be provided, thereby allowing it to cease its subsidies of the 403 bus services which were now over-subscribed following the closure of the Westerham branch. In July 1962, British Railways granted a lease of Westerham station building, which became the headquarters of the Association. A lease of Brasted Station was also later agreed.
In October it was revealed that railway author and publisher Ian Allan was interested in operating the line through a management committee on which the WVRA would be represented. This company would then form part of his group of companies. He later withdrew his support when his planning application for a petrol station adjacent to Westerham station was turned down.
British Railways were later to change their policy regarding the disposal of disused branch lines and, as they had done with the Bluebell Railway, were no longer prepared to simply lease the line to a private operator. Instead, they now required an outright sale of the line to the Association for £53,000. Thanks to the help of an anonymous backer, the Association was able to put forward an offer of £30,000 for the track, buildings, land and branch platform at Dunton Green. British Railways accepted this offer subject to the condition that a commuter service is provided, thereby enabling it to cease its annual subsidy of £8,700 towards the additional bus services laid on following the line's closure.
The withdrawal of Ian Allan cast serious doubt on the proposed reopening. In the Association's Annual General Meeting on 2 November 1963, members were informed that efforts to raise the £30,000 plus £10,000 for equipment had failed. Furthermore, British Railways were now in talks with Kent County Council regarding the sale of the line to enable the construction of the proposed orbital motorway - what would later become the M25 motorway.
More positive news was received in November 1963 when it was revealed that not only had a new backer been found, but also that terms were agreed with British Railways for the sale of the land to the Association. However, one month later Kent County Council contacted the Association and informed them that the Council's intended purchase of the land would save taxpayers the sum of £120,000 and, furthermore, that in the event British Railways were unwilling to sell the land to the council, as had been intimated, compulsory purchase powers would be used. Faced with the prospect of a compulsory sale, British Railways now broke off negotiations with the Association and agreed to sell the line to the Council.
However, in April 1964, the Council indicated their willingness to lease the line to the Association, thereby ensuring its continued existence if the Association were to come up with the cost of constructing a bridge over the railway cutting at Chevening to enable the new road to cross it. The cost of this bridge was estimated by the Council at £14,000, added to which was the annual rent of the line of £3,000. The estimate of £14,000 was revised upwards in August 1964, to a figure of £26,215 (equivalent to £490,714 in modern currency) which was to be paid by 24 August; otherwise works would commence to infill the cutting at Chevening.
In the meantime, the purchase of several former Metropolitan Railway coaches and a Class H 0-4-4T locomotive No.31263 had been agreed and they were awaiting collection. Initially, British Railways had allowed the stock to be stored at Dunton Green, but since the intervention of the Kent County Council, it became reluctant to allow this and threatened to scrap the stock were it not collected. The coaches were loaned and later sold to the Keighley & Worth Valley Railway and the locomotive to the Bluebell Railway where it remains today.
By November 1964 the funds to construct the bridge had still not been found and, following the infilling of the Chevening cutting, the Association realised that their plans to reopen the line could no longer be realised. This was notwithstanding intervention by the MP for Faversham, Terence Boston, who unsuccessfully attempted to persuade the new Labour Minister of Transport, Tom Fraser, to hold an enquiry into the County Council's plans to convert the line into motorway.
In autumn 1965, the Association merged with the Kent & East Sussex Railway Preservation Society. The remaining track was lifted that year and Westerham station building was demolished in 1966. Works on the section of the M25 from Sundridge Road to Westerham commenced in December 1976 and were completed in December 1979.
Some sections of the line still remain today and it is possible to walk from Dunton Green as far as the site of Chevening Halt. Two slip roads of the M25 (Junction 5) cut across the Westerham branch just to the west of the halt. Then the course of the branch is clearly defined for 100yd until the motorway curves round from the north and onto the trackbed. The railway and motorway then follow a similar course until the outskirts of Westerham where the motorway swings away to the north to avoid the town. The railway swings across the motorway several times: sometimes it is on the north side and sometimes on the south, but for all of this length the course has been obliterated by the motorway works. Once the motorway and railway diverge on the outskirts of Westerham the course of the line can once again be regained initially as a low embankment then on the west side of Beggars Lane, a path along the edge of a field as far as Madan Road where the route is lost under back gardens. The site of Westerham station and goods yard is now covered by industrial units along a road known as 'The Flyers Way'.
On 29 and 30 October 2011 the Westerham Branch came alive again to celebrate the 50th anniversary of its closure in 1961. Volunteers at the Spa Valley Railway, operating between Eridge and Tunbridge Wells, changed the names of the stations from Eridge to Dunton Green, Groombridge to Brasted Halt, High Rocks to Chevening Halt and Tunbridge Wells to Westerham.
The ‘Westerham Flyer’ operated, and additional shuttle services ran from Eridge to Groombridge. Special tickets were made for the event (one is seen above) and visitors were also treated to information on the branch line, as well as a model railway set and video footage. Click here for some pictures.
FILMS:
Bradshaws from Nick Catford. Route map drawn by Alan Young. Tickets from Michael Stewart, Brian Halford Southern Railway sign (from Brasted) Martin Foley. WVRA leaflet and newsletters from Glynn Huggins & Martin Foley. Coal merchant adverts from Bill Curtis
Special thanks to Westerham social historian Bill Curtis for his invaluable help with information during the preparation of this feature. Some short sections of text has been reproduced from Bill's book listed below. Thanks also to Darren Kitson for writing most of the captions.
Click here to download the Westerham Valley Railway Association Newsletter No 2 'The Westerham Flyer' May 1963
Click here to download the Westerham Valley Railway Association Newsletter No 3 'The Westerham Flyer' August 1963
Click here to download Westerham Valley Railway by GT Black 1962. Published by the WVR
Click here to see Adrian Prime's excellent model of Brasted station and goods yard. (61 pictures)
SOURCES:
To see stations on the Westerham branch
click on the station name:
Westerham, Chevening Halt & Dunton Green
|